This section describes the compliance requirements for solar photovoltaic (PV) systems, solar readiness, battery storage systems, and community-shared solar electric generation and/or storage systems for newly constructed multifamily buildings. For information about solar water heating system, please see Section 6.
Table 11-73 provides an overview of the location of the multifamily PV and battery storage requirements in the 2022 Energy Code and where descriptions reside in this document.
Mandatory Energy Code | Prescriptive Energy Code | Performance Energy Code | Compliance Manual Section | |
Solar PV | N/A | |||
Solar Ready | N/A | N/A | Chapter 9 | |
Battery Storage | N/A | |||
Community-shared Solar | N/A | N/A |
Source: California Energy Commission
The PV and battery storage installation are new prescriptive requirements in 2022 Energy Code for newly constructed multifamily buildings with four or more habitable stories. The prescriptive PV requirement sets the standard design budget for the performance approach. A definition for solar access roof area (SARA) was added to define the PV sizing requirement for multifamily buildings based on available unshaded roof area. As a result of the new definition of SARA and changes in Exception 1 to §170.2(f), previous exceptions were removed, and new exceptions added. There is a new exception for multifamily buildings unable to comply with ASCE Snow Load requirements with the addition of solar panels and other mounting equipment. For multifamily buildings with four or more habitable stories, an exception based on availability of virtual net energy metering or community shared solar is added to avoid the added costs of direct wiring to individual tenant spaces.
Changes to community solar requirements include clarification of additionality requirements, opt-out requirements, and a new section for maximum size for community scale system. There is also a new annual reporting requirement and a public review process for local adoption of public agencies administering community shared solar PV and/or battery storage system.
This section describes the prescriptive PV requirements for multifamily buildings, performance approach compliance and the Joint Appendix 11 requirements for orientation, shading, solar access verification, remote monitoring capability and interconnection requirements.
Solar PV sizing, installation, and enforcement requirements vary for buildings of up to three habitable stories and four or more habitable stories. JA11 requirements apply to all multifamily buildings.
The prescriptive PV size is calculated using either 1) an equation based on conditioned floor area or 2) solar access roof area (SARA).
SARA includes any roof space on newly constructed buildings, including covered parking areas and carports that can support a PV system per Title 24 Part 2 Section 1511.2, and has 70 percent or greater annual solar access. It does not include occupied roof areas as specified by CBC Section 503.1.4. SARA does not include roof area that is otherwise required to comply with other building code requirements if confirmed by the Executive Director.
Annual Solar Access is calculated by dividing the total annual solar insolation accounting for shading obstructions by the total annual solar insolation if the same areas were unshaded by obstructions. Annual solar access is determined by a qualified solar assessment tool meeting JA11.4 requirements, explained further in the Solar Access Verification section below.

Shading obstructions to be considered for solar access calculations include:
- For steep slope roofs in buildings up to three habitable stores, existing permanent natural or manmade obstructions, such as trees, hills, adjacent structures, that are external to the building.
- For buildings with four or more habitable stories and buildings up to three habitable stories with low-sloped roofs, all obstructions including those that are external to the building and obstructions that are part of the building design and elevation features
B. Up To Three Habitable Stories
Multifamily buildings with up to three habitable stories are required to have a PV system installed unless the building qualifies for an exception. The minimum qualifying PV system size is calculated as a minimum of,
- Projected annual electrical usage as described by the Equation 11-3 below or
- Maximum PV system size that can be installed in SARA
kWPV required = (CFA x A)/1000 + (NDU x B)
WHERE:
kWPV = kWdc size of the PV system
CFA = Conditioned floor area
NDU= Number of dwelling units
A = CFA Adjustment factor from Table 11-74
B = Dwelling unit adjustment factor from Table 11-74
| Climate Zone | A - CFA | B - Dwelling Units |
| 1 | 0.793 | 1.27 |
| 2 | 0.621 | 1.22 |
| 3 | 0.628 | 1.12 |
| 4 | 0.586 | 1.21 |
| 5 | 0.585 | 1.06 |
| 6 | 0.594 | 1.23 |
| 7 | 0.572 | 1.15 |
| 8 | 0.586 | 1.37 |
| 9 | 0.613 | 1.36 |
| 10 | 0.627 | 1.41 |
| 11 | 0.836 | 1.44 |
| 12 | 0.613 | 1.40 |
| 13 | 0.894 | 1.51 |
| 14 | 0.741 | 1.26 |
| 15 | 1.56 | 1.47 |
| 16 | 0.59 | 1.22 |
Source: California Energy Commission
There are five allowable exceptions to the prescriptive PV requirements for multifamily buildings with up to three habitable stories as listed below.
- No PV system is required if the SARA is less than 80 contiguous sq. ft. For steep slope roofs, SARA must not consider roof areas with a northerly azimuth that lies between 300 degrees and 90 degrees, from true north.
- No PV system is required if the minimum PV system size specified by §170.2(f) is less than 1.8 kWdc.
- No PV system is required if it is not possible for the PV system, including panels, modules, components, supports, and attachments to the roof structure, to meet the requirements of the American Society of Civil Engineers (ASCE), Standard 7-16, Chapter 7, Snow Loads.
- No PV system is required if buildings are approved by the planning department prior to January 1, 2020. SARA can be determined using shading designs from the approval process demonstrating the roof areas that are now allowed to have PVs. It does not require an additional solar assessment to determine SARA per 2022 Title 24 requirements.
- The required PV sizes from Equation 11-3 may be reduced by 25 percent if a battery storage system is installed. The battery storage system must have a minimum usable capacity equivalent to 7.5 kWh and meet the qualification requirements specified in Joint Appendix JA12.
Multifamily buildings with four or more habitable stories also require a newly installed PV system. See chapter 9 for the prescriptive and performance requirements for buildings with more than three habitable stories.
The prescriptive compliance approach for solar PV system is summarized in Table 11-75, which provides the appropriate sequence of steps that identifies if the PV system’s installation is triggered and the corresponding requirements to comply with the prescriptive approach. The requirements verify that the roof has enough appropriate roof space, with no obstruction and adequate structural strength.
| Step | Three or fewer stories | Four or more stories |
| Check for Virtual Net Energy Metering feasibility* | N/A | If program is not available, PV is not required |
| Calculate SARA using approved solar assessment tool | SARA determines the maximum bound of prescriptive PV size requirement. | SARA determines the prescriptive PV size requirement. If SARA is less than 3%, no PV is required. |
| Check contiguous SARA | If SARA is less than 80 contiguous ft., no PV is required. | If SARA is less than 80 contiguous ft., no PV is required. |
| Calculate prescriptive PV size using both equation and SARA approach | Minimum of PV size calculated per Eq 11-3 and maximum possible PV in available SARA. | Minimum of PV size calculated per Eq 11-4 and SARA*14W/ft 2 . |
| Check equation calculated PV size is more than minimum requirement | If PV size is less than 1.8kW, PV is exempted. | If PV size is less than 4kW, PV is exempted. |
| Check snow load design per ASCE 7-16** | If the roof cannot support the required PV structure per snow load design, PV is exempted. | If the roof cannot support the required PV structure per snow load design, PV is exempted. |
| Check for battery installation plan | If a minimum of 7.5kWh battery storage system is installed complying with JA12 requirements, PV size (From step 4) can be reduced by 25%. | N/A |
| Prepare documentation |
Source: California Energy Commission
*If VNEM is not feasible for multiple tenant buildings, solar PV is not required.
**For regions expecting heavy snowfall, snow loads need to be considered in structural design calculations and possible interference to solar access can occur.
Example 11-45: PV size calculation for three habitable stories or less
Question
How is the prescriptive PV size calculated for a multifamily building with two habitable stories of 7,000 sq. ft. and eight dwelling units in Climate Zone 3?
Answer
Follow steps 1 to 3 from Table 11-75 to ensure that the multifamily building does not qualify for an exception. The prescriptive size in step 4 is calculated using the two approaches below,
Applying Equation 11-3,
CFA = 7,000
NDU= 8
A = CFA Adjustment factor from Table 11-74 = 0.628
B = Dwelling unit adjustment factor from Table 11-74 = 1.12
kWPV required = (CFA x A)/1000 + (NDU x B)
= (7,000 x 0.628)/1000 + (8 x 1.12)
= 4.396 + 8.96
= 13.4
Therefore, prescriptive PV size calculated per equation approach is 13.4 kW.
Check maximum allowable PV in the available SARA,
Assuming 50% of roof space is available for installing solar panel, which is calculated to be 0.5x3,500 = 1,750 ft2.
Assuming a typical size of solar panel to be 20 ft2. and allowing a margin of area around the solar panel, an approximate of 58 panels can be fit into the available SARA. This would roughly calculate to a PV size of 14.5 kW.
The PV size that can be accommodated in available SARA is bigger than the size of 13.6kW calculated using the Equation 11-3. Hence, the prescriptive size is calculated to be 13.6kW.
Example 11-46: PV size calculation for four or more habitable stories
Question
How is the prescriptive PV size calculated for a multifamily building with ten habitable stories, 125,400 ft2. and 117 dwelling units in Climate Zone 3?
Answer
Follow steps 1 to 3 from Table 11-75 to ensure that the multifamily building does not qualify for an exception. The prescriptive size in step 4 is calculated using the two approaches below:
- Applying Equation 11-3,
CFA = 125,400
A = CFA Adjustment factor from Table 11-3= 1.82
kWPV required = (CFA x A)/1000
= (125,400 x 1.82)/1000
= 228.2 kW
Therefore, prescriptive PV size calculated per equation approach is 228.2 kW. - Applying SARA approach,
SARA calculated per solar assessment tool, described in JA11, is multiplied by 14W/ft2 to determine the prescriptive PV size.
Assuming 30% of roof space (12,540 ft2 to qualify to be SARA, then the prescriptive PV size calculated using SARA approach is,
= 0.3 x 12,540ft2 x 14 W/ft2
= 52,668 W
= 52.7 kW
The prescriptive PV size is calculated to be a minimum of PV sizes calculated using both approaches,
= MIN (228.2,52.7)
= 52.7 kW
The PV size that can be accommodated in available SARA is smaller than that calculated using the Equation 11-3. Hence, the prescriptive size is calculated to be 52.7kW.
The installed PV system for any multifamily building must meet the applicable requirements specified in JA11 for both the prescriptive and performance approach. Requirements include considerations such as system orientation, shading criteria, solar access verification, remote monitoring, and interconnection requirements.
For prescriptive compliance, if a PV system is installed with a pitch greater than 2:12 or 10 degrees, the arrays must be oriented between 90 to 300 degrees from true north. If the pitch is less than 10 degrees, the orientation has insignificant impact on the array’s performance; therefore, the PV system can be installed with any azimuth range.
Using the performance approach, the PV array may be oriented (and modeled) in any direction, including due north; however, the more the orientation deviates from the southwest optimum, the worse the system performs, resulting in a larger PV system size to meet the same load.
The California Flexible Installation (CFI) is a simplified modeling option in the performance approach. This option allows flexibility, and it has no specific requirements on orientation and tilt, while meeting the minimum shading criterion outlined in JA11.3.1. To use the CFI option for compliance:
- For CFI1, the PV array azimuth angle must be anywhere between 150 to 270 degrees from true north, and the tilt of all PV modules must be the same as the roof for pitches up to 7:12.
- For CFI2, the PV array azimuth angle must be anywhere between 105 to 300 degrees from true north, and the tilt of all PV modules must be the same as the roof for pitches up to 7:12.
The PV system should eliminate or avoid shading from any obstruction to the array Obstructions include the following:
- Any vent, chimney, architectural feature, mechanical equipment, or other obstruction that is on the roof or any other part of the building.
- Any part of the neighboring terrain.
- Any tree that is mature at the time of installation of the PV system.
- Any tree that is planted on the building lot or neighboring lots or planned to be planted as part of landscaping for the building. (The expected shading must be based on the mature height of the tree.)
- Any existing neighboring building or structure.
- Any planned neighboring building or structure that is known to the applicant or building owner.
- Any telephone or other utility pole that is closer than 30 ft. from the nearest point of the array.
Any obstruction located directly north of the array does not count as shading obstruction.
For prescriptive compliance, the weighted average of annual solar access, determined by solar access verification tool approved per JA11.4 requirements, across each solar panel must be at least 98 percent. The individual roof areas that constitute SARA must be greater than 70 percent per its definition. This requirement assumes that SARA is more than 80 contiguous sq. ft. and that the exception 1 to section 170.2(f) does not apply. If the annual solar access is less than 98%, then the building does not meet the prescriptive requirement and the performance compliance method must be used instead.
For the performance approach, the annual solar access is a required input and there is no minimum requirement for annual solar access. However, shading on the PV array must be avoided to get maximum benefit to meet the TDV energy.
For more information on software inputs, please refer to the software user’s manual.
Example 11-47: Shading
Question
What impact does shading have on the solar PV sizing requirement?
Answer
Prescriptively the PV array cannot have any shading and must meet the minimum shading criteria in JA11. Under the performance path the shading condition must be modeled, and it will result in a larger PV size that meets the same TDV budget as a smaller unshaded PV system.
Example 8-4: Shading
Question
How are the shading requirements of JA11.3 verified using prescriptive compliance approach?
Answer:
- Assess SARA using solar access verification tool as required by JA11.4.1
- If SARA is greater than 80 contiguous sq. ft., assess annual solar access for each solar panel
- Take weighted average of annual solar access across each solar panel
- Verify if the weighted average of annual solar access at each solar panel is greater than 98%. If yes, then the shading requirements of JA11.3 are met.
A solar assessment tool that is certified by the Executive Director and complies with JA11.4.1 requirements must be used to document and verify the shading conditions of the PV system. The results of the solar access verification tool should be used to demonstrate compliance with:
- Prescriptive approach of at least 98% weighted average of solar access across all solar panels per JA11.3.1
- Performance approach of actual shading condition modeled in compliance software and indicated on certificate of compliance
The CEC approved solar assessment tools can be of one of the following types:
- Physical tool that measures the availability of solar energy on installation site
- Software tool that models the physical features of the building and surrounding shading conditions including roofs and trees, and then calculates their solar potential by analyzing it against historical weather data
- Satellite or drone imaging data if it can demonstrate solar access percentages similar to on-site measurements
Table 11-76 summarizes the solar access verification tool requirements from JA11.4.1.
Category | Requirements |
Input | Physical features of building Obstructions to the roof listed in Section : Shading above per JA11.3 Historical weather data |
Calculations | Calculate annual solar access percentage of each individual solar array. Calculate annual solar access percentage as a weighted average of the whole. Include all obstructions, including any tree that is planted on the building lot or neighboring lots or planned to be planted in landscaping. Not to include horizon shading in the calculation |
Reporting | Produce a shade report with a summary of the PV system, including the address of the project, individual array panel count, orientation, annual solar access percentage, and weighted average of the PV system as whole. |
Source: California Energy Commission
The PV system must be integrated with a monitoring system that can provide remote monitoring capability to its user. The monitoring data should be accessible via a web-based portal or mobile device application that enables the building manager, owner, or occupants to monitor the performance of their PV system. This data can be useful to identify, report, and correct performance issues with the panels, inverters, shading, or other issues that may adversely impact the performance of the PV system. At a minimum, the building manager, building owner, or occupants must have access to the following information:
- The nominal kW rating the PV system.
- Number of PV modules and the nominal watt rating of each module.
- Hourly (or 15-minute interval), daily, monthly, and annual kWh production in numeric and graphic formats for the system.
- Running total of daily kWh production.
- Daily kW peak power production.
- Current kW production of the entire PV system.
Example 11-48 Remote Monitoring
Question
How do I implement monitoring to meet section JA11.5.1 including the current reading?
Answer
There are multiple options. Many inverters can connect via ethernet and wirelessly to the building manager’s, building owner’s, or occupant’s internet, and others use independent cellular connections. For cellular, the data should be updated to the monitoring portal periodically as allowed by the cellular plan.
The installed inverters must be tested in accordance with the applicable requirements in UL1741 and UL1741 Supplement A.
The PV system and the associated components, including the inverters, must comply with the California Public Utilities Commission (CPUC) Electric Tariff Rule 21, which governs CPUC-jurisdictional interconnections for all net energy metering customers. Rule 21 requires that inverters have certain capabilities to ensure proper operation of the electrical grid as more renewables are interconnected. The inverters must perform functions that, when activated, can autonomously contribute to grid support during excursions from normal operating voltage and frequency system conditions by providing dynamic reactive/real power support, voltage and frequency ride-through, ramp rate controls, communication systems with ability to accept external commands, and other functions.
To certify that the PV system complies with all JA11 requirements, the installer must provide:
- Certificate of Installation for PV system that all provisions of JA11 are met. The certificate of installation must be available on the building site for inspections.
- Solar Assessment Report: Solar assessment report produced by a CEC approved solar access verification tool to verify the shading conditions that all requirements pertaining to SARA are met. If satellite, drone, or other digital image is used for solar access verification, the solar assessment report must be created or dated after the installation of the PV system. If the digital image is dated before the installation of PV system, additional on-site pictures must be attached to clearly show that the installed system matches the system modeled in the solar assessment report.
The local enforcement agency must verify that the Certificate of Installation is valid complete and correct, and uploaded into a Commission-approved registry.
Solar ready requirements are mandatory for newly-constructed multifamily buildings with fewer than 10 habitable stories that do not have a photovoltaic system installed. These requirements are explained in Chapter 9.
Multifamily buildings with four or more habitable stories are required to have battery storage under the prescriptive approach if solar PV is installed and meets the prescriptive requirements. The battery system can also be installed as a stand-alone system for additional compliance credit. The battery storage system is required to meet the qualifications of Joint Appendix JA12 for both prescriptive and performance approach. For multifamily buildings with 3 or less habitable stories, battery storage is not required and is available as compliance credit under the performance compliance approach.
The primary function of the battery storage system is load shifting to harmonize the onsite PV system with the grid and deliver benefits to the environment, building owner, and building occupants.
Battery storage system is added to the list of compliance loads in the 2022 Title 24 energy budget per the §170.1. The TDV energy budget is calculated by the software as the sum of all building loads, including PV and the battery storage system, in addition to space conditioning, indoor lighting, mechanical ventilation, service water heating, and covered process loads.
The TDV energy budget can also be met partially or fully by connecting the building to a community battery storage system that complies with Title 24, Part 1, §10-115. The requirements of community shared storage system compliance pathway are detailed in Section 11.11.4 below.
Exception 1 of §170.2(h) from the prescriptive requirements can also be used under the performance approach. Multifamily buildings with installed PV less than 15 percent of the prescriptive size calculated by the equation 11-5 and 11-6 are exempt from installing battery storage. The building permit applicant must select the appropriate exception in the software and provide documentation to the building department with the building permit application.
The battery storage system must comply with all the applicable requirements of Joint Appendix 12 (JA12) reference standard as described in Section 11.11.3.3.
The battery storage system must meet all applicable requirements in JA12, listed in chapter 9 of this manual, and be self-certified to the CEC by the manufacturer as a qualified product. The list of qualified JA12 products can be found here: https://www.energy.ca.gov/programs-and-topics/topics/rnewable-energy/solar-equipment-lists
Coupling a PV system with a battery storage system and appropriate control strategy will allow for a smaller PV system than otherwise would not have been possible.
A community-shared solar electric generation system, other renewable electric generation system, and/or community shared battery storage system may offset part or all the solar electric generation system time dependent valuation (TDV) energy required to comply with the standards. This compliance pathway under the performance approach should provide dedicated power, utility energy reduction credits to the permitted building and is approved by the Energy Commission as specified in Title 24, Part 1, Section 10-115.
Community Shared Solar Electric Generation means solar electric generation or other renewable technology electric generation that is installed at a different site.
Community Shared Battery Storage refers to the battery storage systems installed at a different site, separately or in combination with Community Shared Solar Electric Generation.
The community shared systems should be approved by Commission and be available for inspection by enforcement agency during compliance verification process.
The Community Shared Solar Electric Generation system should meet the following requirements discussed below.
The Community Shared Solar Electric Generation system and/or Community Shared Battery Storage system must exist and be available for enforcement agency review early in the permitting process, and it must not cause delay in the enforcement agency review and approval of the building that will be served. The enforcement agency should have jurisdiction and facilitated access to the Community Shared Solar Electric Generation system to verify the validity and accuracy of compliance documentation. All documentation required to demonstrate compliance for the building for Community Shared Solar Electric Generation system and/or Community Shared Battery Storage system must be completed prior to the building permit application.
Energy Commission approved compliance software must be used to show that the energy performance of the building’s share of the Community Shared Solar Electric Generation system is equal to or greater than the partial or full offset claimed for the solar electric generation and battery storage system, which would otherwise be required for the building to comply with the Standards.
The minimum community shared solar size dedicated to the building and the annual kWh equivalence may be measured in one of two ways: 1) Using the CBECC Simplified approach for PVs and the CFI orientation option, or 2) by modeling the actual attributes of the system using the detailed approach. When the detailed approach is used, the compliance software will determine a minimum kW size that will represent the portion of the community solar resource dedicated to the building, based on PV system component performance characteristics, azimuth, inverter type, tracking versus fixed systems, climate zone, and CEC weather files containing solar availability data.
Additionally, If the community shared solar resources are coupled with a community shared battery storage system in the CBECC-Com, the modeled PV system must also be coupled with at least a battery storage system to determine the size share of the community solar resource dedicated to the building. Also, the portion of the community shared battery storage system dedicated to the dwelling must match the battery storage size modeled in CBECC software.
A specific share of the Community Shared Solar Electric Generation system, determined to comply with the energy performance requirement, must be dedicated on an ongoing basis to the building. The energy savings benefits allocated to the building must be provided in one of the following ways:
- Actual reductions in the energy consumption of the participating building
- Energy reduction credits that will result in virtual reductions in the building’s energy consumption, including but not limited to generation credit, solar charge, program charge, and power charge indifference adjustment charge
- Payments to the building that will have an equivalent effect as energy bill reductions that would result from one of the other two options above
For all three options, the reduction in energy bills resulting from the share of the Community Shared Solar Electric Generation system dedicated to the building must be greater than the added cost that is charged to the building to obtain that share of the Community Shared Solar Electric Generation system and/or battery storage system.
- Durability
The benefits from the specific share of the Community Shared Solar Electric Generation system and/or Community Shared Battery Storage system must be provided to each participating building for a period of at least 20 years.
The administrator(s) approved by the Energy Commission pursuant to Section 10-115(b)1, of community shared solar and/or community battery storage system should ensure that the “participation period” for all the participating building is 20 years regardless of the ownership of the building. However, the building owner can opt out of the community shared solar electric generation and/or community shared battery storage system if they install an on-site solar electric generation system and follow interconnection requirements pursuant to the opt-out requirements in Building Opt-Out section below. To demonstrate compliance, administrator(s) are required to fulfil one of the two options below.
- Equitable Servitude
- The participating builders must impose an equitable servitude through a properly recorded declaration of covenants, conditions, and restrictions or other properly recorded covenant, deed restriction or other legally binding method referenced in each deed transferring title for each participating building.
- This equitable servitude must obligate the original owner(s)/tenant(s) and all subsequent owner(s)/tenant(s) of the participating building to maintain the building’s participation in the community shared solar and/or community shared battery storage system for the participation period or ensure installation and interconnection of an on-site solar electric generation system that satisfies the opt-out requirements.
- The builder must ensure that the equitable servitude provides Commission-approved administrator the right to enforce the above provisions.
- The equitable servitude must remain in force for a period of 20 years from the date of first participation of the building in the community shared solar and/or battery system.
- The equitable servitude must not be revocable.
- The equitable servitude must be delivered to all responsible parties through transfer disclosure statements.
- Other System
- The Commission may approve another program, structure, or system by which an administrator (or other entity approved by the Commission) ensures the participation requirements of Section 10-115(a)4B will be satisfied for a participation period of no less than 20 years.
This section determines requirements for administrator(s) to comply with record maintenance of compliance documents.
- The administrator must maintain record(s) of the compliance documentation that determined the requirements for the on-site solar electric generation system and/or battery storage system, which is in effect at the time the builder applied for the original building permit, and it establishes participants’ obligations to meet the opt-out requirements.
- The administrator must provide a copy of this compliance documentation upon a participating building owner’s request to every new owner of a participating building, when the administrator is notified that title has transferred.
- The administrator must provide a copy of this compliance documentation to any participating building owner who requests to opt-out.
At any time during this period, the building owner must have the option to discontinue participation in the community shared solar and/or battery storage system if the building satisfies the opt-out requirements.
- Prior to opt-out, the building owner must demonstrate an on-site solar electric generation system to be installed, which meets the requirements of §170.0(a)3, which were in effect at the time the building was permitted.
- Prior to opt-out, the building owner should provide documentation from the installer of the on-site solar system or an attestation of the building owner with supporting documentation along with taking responsibility of all costs associated with it.
- The administrator must compare the opt-out documentation received from building owner to the original compliance documentation specified in Section 10-115(a)4C. Based on the opt-out documentation, the administrator must provide written confirmation that the installed solar system meets or exceeds the opt-out requirements within 30 days of receiving from building owner.
- The administrator may, at its discretion, verify the documentation through a physical inspection.
- The administrator must maintain record of the documentation that demonstrates and confirms the on-site solar generation system met the opt-out requirements for the remainder of the participation period.
- Upon the building owner’s exercise of the opt-out, all costs and benefits associated with participation in the community shared solar and/or battery storage system must cease. If any balance of costs or benefits is owed to either party at the time of opt-out, such balance must be paid to that party.
- The administrator (or other entity approved by the Commission pursuant to Section 10-115(a)4Bii) must not impose any penalty related to a participating building’s opt-out or charge participants for recuperation of unrealized revenue that would have been expected to accrue beyond the end of participation. If the administrator (or other entity approved by the Commission) plans to charge any other fees at the time of building opt-out, the Application for Commission Approval must explain the purpose of those fees.
The specific share of the Community Shared Solar Electric Generation System must provide the benefits to the participating building that are in no way made available or attributed to any other building or purpose. Renewable Energy Credits that are unbundled from the Community Shared Solar Electric Generation System do not meet this additionality requirement.
- The participating building(s) must be served primarily by renewable resources developed specifically for the community solar electric generation system.
- Other renewable resources may be used when participating buildings are permitted before the renewable resources developed for the program start operating or after they cease operating. During these times, other renewable resources may be used to meet the requirements of Section 10-115(a)4 for each participating building.
- The renewable resources, including those developed primarily to serve participating buildings and those utilized to fill before and after time gaps for the purpose of meeting the requirements of Section 10-115(a)4, must meet the following requirement:
- For each renewable resource used to serve participating buildings, bundled (Product Content Category 1) Renewable energy credits (RECs) must be retired and tracked in the Western Renewable Energy Generation Information System on the behalf of program participants, to ensure that they will not be allocated to or used for any other purpose, including Renewable Performance Standard compliance, resale of RECs or renewable generation to any other person or entity, or any other mandatory or voluntary renewable electricity program requirement or claim.
- Renewable resources developed to serve participating buildings may also be used to serve other loads when there is excess generation beyond what is needed to serve participating buildings. Any excess generation used for such other loads must be isolated from the generation serving participating buildings and must not result in violation of Section 10-115(a)5C.
Example 11-51
Question
To help entities that might want to apply to the Energy Commission for approval of a Community Shared Solar Energy Generation System, please provide examples of each of the three optional ways energy savings benefits could be provided to comply with Participating Building Energy Savings Benefits requirements.
Answer
Examples would include:
Actual reductions in the energy consumption of the building: This could be accomplished by locating the PV systems for several houses on a carport on common land in a subdivision, and direct wiring the unique PV panels serving each house to an inverter that is located on the home’s site. For homes served by utilities that are subject to compliance with Net Energy Metering requirements, the common land that is hosting the PVs on the carport would have to be adjacent to (could be directly across a street) the houses that are being served by the PV system. All other requirements of Section 10-115 would have to be met.
Utility energy reduction credits that will result in virtual reductions in the building’s energy consumption that is subject to energy bill payments: This could be accomplished through a community shared solar program administered by a utility (like the Green Tariff Shared Renewables, or GTSR), for which a remote renewable resource is paid for through shares purchased for each home, and energy bill credits are that reduce monthly electricity bills are allocated based on the homes’ shares, including but not limited to generation credit, solar charges, program charges, and nonparticipant charges. All other requirements of Section 10-115 would have to be met.
Payments to the building that will have an equivalent effect as energy bill reductions would result from one of the two options above: This could be accomplished by builders installing PV systems on other properties they own to offset the compliance requirement for onsite PVs on homes, they build. The homes would pay for a share of the PV systems on the other properties. The builders would be obligated to make an ongoing cash payment back to the homes for the home’s share of the electricity generation achieved by the PV systems on the other properties. The share of the ownership of the PV systems on the other properties and the corresponding sharing of the electricity generation achieved by the PV systems on the other properties would not be accounted for through a utility system – the ownership share would not be paid to the utility and the payment for the share of the electricity generation achieved by the PV systems on the other properties would not be provided through a utility bill. The entire program would be administered by the builder for a 20-year period for each home. All other requirements of Section 10-115 would have to be met.
Example 11-52
Question
Explain what the cost requirements in Participating Building Energy Savings Benefits section above that says: “In other words, a building that participates in an approved community solar program cannot be charged more than the nonparticipating building that has no onsite PV system and does not participate in a community shared solar electric generation and/or battery storage program.”
Answer
Regardless of the three options above is chosen, it must be cost effective to the home for the home to participate in a community shared solar electric generation system program. The home will pay for its share of the community renewable resource, and will receive either energy bill reductions, credits or cash payments for the electricity that is generated by the community renewable resource. The $ value of the bill reductions, credits or cash payments must exceed the cost to the home to pay for its share of the community renewable resource.
Let’s take a hypothetical example of a Green Tariff Shared Renewables Program (GTSR) that is required by statute to be operated by the IOUs. The following shows the costs that the program charges a home to obtain shares of the program’s community solar resources, and the energy bill credit. The charges and credit are allocated per KWh generated by the home’s share of the community renewable resource.
Example Green Tariff Shared Renewables Program Details
Solar Charge 6.48 cents per kWh
Program Charge 2.956 cents per kWh
Power Charge Indifference Adjustment (PCIA) Charge 3.346 cents per kWh
Total Program Charges 12.782 cents per kWh
Generation Credit -10.78 cents per kWh
The total cost that the home pays per kWh for its share of the community renewable resource is 12.8 cents per kWh and the energy bill credits for generation from the home’s share of the community renewable resource is 10.8 cents per kWh. Since the value of the home’s energy bill credit does not exceed the cost for the home to participate in the community solar program, the cost requirement is not met. Cost requirements can be brought into compliance through a combination of an increase in the generation credit and reductions in solar charge, program charge, and power charge indifference adjustment (PCIA) charge. In this example, if the generation credit raises by one cent, up to 11.8 cents, and combined charges decrease by 1.1 cents, down to 11.7 cents, then the program meets the cost requirements.
The Garden Style Multifamily Case Study considers a new two-story garden style multifamily building in Burbank, California (Climate Zone 9). This is a sample project created for training purposes, and it consists of 7,216 ft² of conditioned floor area with eight dwelling units and no common use areas. The case study tables in this chapter compare the proposed building solar electricity and battery storage to mandatory and prescriptive Energy Code requirements and evaluate possible compliance options.
| CASE STUDY | MANDATORY | PRESCRIPTIVE | COMPLIANCE | |
| New Multifamily Building | New two-story garden style multifamily building, eight dwelling units, no common use areas, Burbank, CA | Section 110.10 |
Section 170.2(f) , Joint Appendix JA11 New multifamily building ≤ three stories, Climate Zone (CZ) 9 | Case study Mandatory and Prescriptive compliance rated for each feature below as “Yes” (complies), “No” (does not comply) or “N/A” (not applicable). If “No”, see compliance options provided. |
| Total Conditioned Floor Area (CFA) | 7,216 ft² | 7,216 ft² | ||
| PV System Electrical Output (kWdc) | 15.6 kWdc | N/A |
kWpv calculated per Equation 170.2-C: ≥ 15.3 kWdc | Mandatory: N/A Prescriptive: Yes |
| PV Panel Tilt | 3:12 Pitch | N/A | Any PV with ≥ 2:12 pitch is defined as steep-sloped and must meet applicable orientation requirements | Mandatory: N/A Prescriptive: Yes |
| PV Panel Orientation | 180 degrees (due South) | Section 110.10(b) |
Section 170.2(f) , JA11 PV for steep-sloped roofs must be installed between 90 degrees (due east) and 300 degrees (30 degrees north of due west) | Mandatory: Yes Prescriptive: Yes |
| Battery Storage | None | N/A | Not required for new multifamily buildings ≤ three stories | Mandatory: N/A Prescriptive: No |
Source: California Energy Commission
Providing electricity generated using solar photovoltaics (PV) is a prescriptive requirement for multifamily buildings with three or fewer habitable stories. The minimum kWdc PV output capacity is the smaller of that calculated using Equation 170.2-C or the maximum that can be installed on the building’s Solar Access Roof Area (SARA). SARA includes all of the building’s unobstructed roof area (including garage roofs and other roofs on-site) with at least 70 percent solar access and structurally capable of supporting a PV system.
Figure 80: Garden Style Multifamily Case Study: Photovoltaics (PV) on South-Facing Roof

The total roof area for this case study including overhangs is 4,284 ft2 measured in plan view and 4,416 ft2 accounting for the 3:12 roof pitch. Half of the roof faces due south (180 degrees) and half faces due north (0 degrees). PV for steep-sloped roofs must be installed at orientations between 90 degrees (due east) and 300 degrees (30 degrees north of due west), so only the south-facing roof meets prescriptive orientation requirements. The south-facing roof has no obstructions and nothing shading it, so the SARA equals 2,208 ft2.
The proposed PV system has 60 solar panels at 260 watts each or 15.6 kWdc. The total area of the panels is 1,056 ft2 or less than half the SARA.
The minimum electrical output of the PV system calculated using Equation 170.2-C is:
kWpv= (CFA x A)/1000 + (NDwell x B).
kWpv = kWdc size of the PV system CFA = Conditioned floor area
NDwell = Number of dwelling units
A = Adjustment factor from Table 170.2-T
B = Dwelling adjustment factor from Table 170.2-T
The minimum Prescriptive electrical output for this project is: kWpv = (7,216 x 0.613)/1,000 + (8 x 1.36) = 15.3 kWdc
-
The proposed system has 15.6 kWdc output, so it complies prescriptively as designed.
The Mid-Rise Multifamily Case Study covers a new five-story multifamily building in Sacramento, California (Climate Zone 12). This is a sample project created for training purposes, and it includes 112,044 ft² of conditioned floor area with 88 dwelling units, shared residential corridors, laundry rooms, fitness center and lounge, plus ground floor retail. The case study tables in this chapter compare the proposed building solar electricity and battery storage to Mandatory and Prescriptive Energy Code requirements and evaluate possible compliance options.
| CASE STUDY | MANDATORY | PRESCRIPTIVE | COMPLIANCE | |
| New Mid-Rise Multifamily Building | New five-story mid-rise multifamily building, 88 dwelling units, common use areas, ground floor retail, Sacramento, CA | Section 110.1 | Sections 170.2(g) , 170.2(h) and 140.10, Joint Appendices JA11 and JA12 New multifamily building ≥ four stories, Climate Zone (CZ) 12 | Case study Mandatory and Prescriptive compliance rated for each feature below as “Yes” (complies), “No” (does not comply) or “N/A” (not applicable). If “No”, see compliance options provided. |
| Dwelling Unit Conditioned Floor Area | 78,384 ft² | N/A | 170.2(g) and 170.2(h) | |
| Common Use Area Conditioned Floor Area | 17,487 ft² | N/A | 170.2(g) and 170.2(h) | |
| Retail Conditioned Floor Area | 16,173 ft² | N/A | 140.10 | |
| Total Conditioned Floor Area | 112,044 ft² | N/A | ||
| Total Percent Multifamily in Mixed Occupancy Building | (78,384 + 17,487)/ 112,044 = 85.6% | N/A | Per 170.2(g) and 140.10(a), since multifamily is ≥ 80% of total CFA, the multifamily Prescriptive PV requirements apply to the whole building. |
CASE STUDY | MANDATORY | PRESCRIPTIVE | COMPLIANCE | |
PV System Electrical Output (kWdc) | 123.2 kWdc | N/A | kWpvdc calculated per Equation 170.2-D: 247.6 kWdc kWpvdc calculated as SARA x 14 W/ft²: 194.8 kWdc Required kWpvdc is the smaller of these two calculations: ≥ 194.8 kWpvdc | Mandatory: N/A Prescriptive: No Compliance Options: 1. Redesign the PV panel installation to fit a total of 455 panels at 320 watts each. 2. Keep the same layout, but use 378 watt PV panels 3. Performance Approach |
PV Solar Access Roof Areas (SARA) | 10,395 ft² SARA to be verified using a certified solar assessment tool | N/A | Solar access to be verified using a certified solar assessment tool per Reference Appendix Section JA11.4 | Mandatory: N/A Prescriptive: Yes |
PV Panel Tilt | < 2:12 pitch | N/A | JA11 Any PV with < 2:12 pitch is defined as low-sloped | Mandatory: N/A Prescriptive: Yes |
PV Panel Orientation | Installed on flat roof | Section | PV with < 2:12 pitch do not have orientation restrictions | Mandatory: Yes Prescriptive: Yes |
Battery Storage Rated Single Charge-Discharge Cycle AC to AC (round trip) Efficiency | 80% | N/A | ≥ 80% per Reference Appendix Section JA12.2.2.1(b) | Mandatory: N/A Prescriptive: Yes |
Battery Storage Rated Energy Capacity | 225 kWh | N/A | Minimum kWhbatt calculated per Equation 170.2-E: (194.8 kWdc x 1.03 Wh/W)/√0.80 = 224.3 kWh | Mandatory: N/A Prescriptive: Yes |
Battery Storage Rated Power Capacity | 51 kWdc | N/A | Minimum kWbatt calculated per Equation 170.2-F: 194.8 kWdc x 0.26 = 50.6 kWdc | Mandatory: N/A Prescriptive: Yes |
Verifications: | Contractor to verify solar access | N/A | Solar access verified using certified solar assessment tool | Mandatory: N/A Prescriptive: Yes |
Source: California Energy Commission
Figure 81: Mid-Rise Multifamily Case Study: Photovoltaics (PV) on Flat Roof (viewed from South)

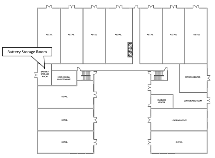
Figure 82: Mid-Rise Multifamily Case Study: 1st Floor Battery Storage Room

One important element of solar design is to make sure that the photovoltaic (PV) modules are installed in locations that have enough sunlight. The Energy Code requires solar access to be verified using a certified solar assessment tool per Reference Appendix Section JA11.4. The Solar Access Roof Area or SARA is the area of available roof surfaces for a building project that have at least 70 percent solar access and that are also structural able to support solar panels. SARA does not include the following:
- Occupied roofs per California Building Code Section 503.1.4:
The deck roofs at the third and fifth floor balconies of this project are considered occupied roofs excluded from the SARA. - sRoof space needed to comply with other building codes as confirmed by the Energy Commission Executive Director:
Roof areas needed to meet California Fire Code (Title 24, Part 9) roof access and egress pathway requirements and roof areas needed around HVAC equipment to meet California Mechanical Code (Title 24, Part 4) requirements are both excluded from the potential SARA for this case study
The Energy Code has two ways to calculate the prescriptive minimum kWdc of PV to be installed for multifamily buildings of more than three habitable stories. One way is to calculate it using Equation 170.2-D which is based on the total building floor area:
EQUATION 170.2-D PHOTOVOLTAIC DIRECT CURRENT SIZE
kWPVdc = (CFA x A)/1000
WHERE:
kWPVdc = Size of the PV system in kW
CFA = Conditioned floor area in square feet
A = PV capacity factor specified in Table 170.2-U for the building type
For this case study, this strategy results in:
kWpvdc calculated per Equation 170.2-D: (112,044 ft2 x 2.21 W/ft2)/1,000 = 247.6 kWdc
Based on the size and wattage of available PV panels, 247.6 kWdc will not fit on the proposed roof. The other way to calculate the Prescriptive PV requirement is to determine the available SARA square footage and multiply it by 14 watts per square foot. Using this method with a SARA of 10,395 ft2 gives the following results:
kWpvdc calculated as SARA x 14 W/ft2:
(10,395 ft2 x 14 W/ft2)/1000 =
145.5 kWdc
The Prescriptive minimum required kWpvdc is the smaller of these two calculations or 145.5 kWpvdc. The design team did not achieve 145.5 kWpvdc in the available SARA. Their PV design only fit 385 PV panels at 320 watts each or 123.2 kWpvdc, so the PV system is out of compliance with the Prescriptive method as designed.
The design team has several Energy Code options to consider. One would be to see they can find a way to fit 455 – 320 watt PV panels in the available SARA. Another would be to keep the same layout with 385 PV panels, but to use a higher performing panel design with at least 378 watts output per panel. If the design team or the client objects to those options, they could work with an energy analyst to model the building overall using the Performance Approach to evaluate possible energy tradeoffs to achieve compliance.
